V roce 2018 společnost TWEKO realizovala projekt dodávky lakovací a sušící komory pro vědecko-výrobní podnik v Kyjevě, který se specializuje na vývoj a výrobu tréninkových a simulačních systémů. Zařízení se stalo součástí optimalizace výrobních procesů klienta.
Na začátku července 2018 se na naši společnost Techservice Veko & Partner GmbH obrátil podnik VVP «Energie 2000» s požadavkem na pořízení lakovací a sušící komory slepého typu s suchou filtrací.
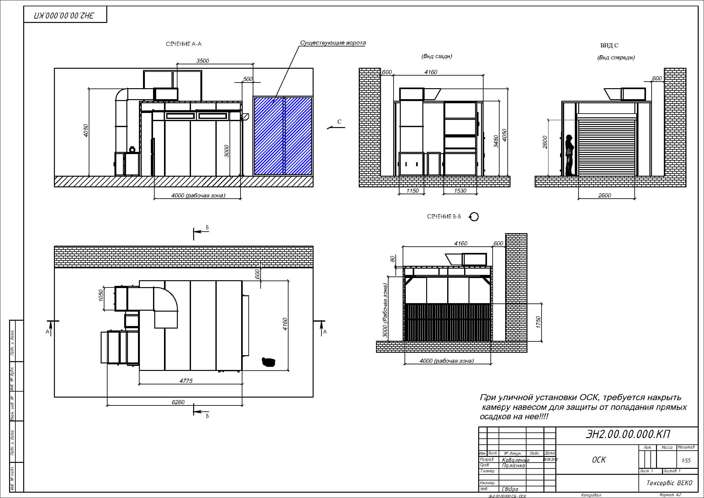
Cíle projektu
Zákazník požadoval:
- Lakovací a sušící komoru (LSK) slepého typu s suchou filtrací.
- Elektrické jednotky pro ohřev vzduchu.
- Rozměry pracovní zóny: délka čtyři metry, šířka čtyři metry, výška tři metry.
- Instalaci na rovný povrch mimo budovu.
TWEKO vyvinula řešení, které splňovalo všechny technické požadavky podniku.
Proces výroby, instalace a hlavní parametry
Po podpisu smlouvy jsme důkladně zpracovali požadavky a technická doporučení zákazníka a poté jsme zahájili realizaci objednávky. Komora byla vyrobena a instalována v souladu s dohodnutými termíny.
Charakteristickým rysem tohoto lakovacího a sušícího komplexu je použití 30 silnovrstvých elektrických jednotek pro ohřev vzduchu s celkovým výkonem až 60 kW/h. Komora byla instalována mimo hlavní výrobní prostor — na otevřené ploše, na předem připravený rovný podklad.
Pracovní zóna komory má rozměry 4,0 × 4,0 × 3,0 m, při vnějších rozměrech 6,26 × 4,16 × 3,48 m. Komora zajišťuje ohřev vzduchu až na teplotu 80 °C, což umožňuje efektivní provádění procesů lakování a sušení i při venkovní instalaci.
Lakovací a sušící komora pro VVP «Energie 2000» byla úspěšně uvedena do provozu a funguje v souladu se všemi stanovenými technickými charakteristikami a parametry, plníc svůj hlavní účel.
Podnik «Energie 2000» byl spokojen s výsledky naší spolupráce, o čemž svědčí pozitivní zpětná vazba, kterou si můžete přečíst níže.
Vedoucí výroby VVP «Energie 2000»
O společnosti
Vědecko-výrobní podnik «Energie 2000» (Kyjev, Ukrajina), založený v roce 1999 a fungující dodnes, se specializuje na vývoj a výrobu široké škály trenažérů pro mechanizované, tankové, dělostřelecké, protitankové a protiletadlové jednotky. Tato činnost má prioritní význam vzhledem k situaci na východě Ukrajiny.
Tento projekt zdůrazňuje schopnost TWEKO vytvářet kvalitní zařízení přizpůsobená specifickým potřebám klientů, zajišťující přesnost provedení a dlouhodobou spolehlivost.
Pokud máte zájem o pořízení tohoto zařízení, zveme vás k návštěvě naší výroby na adrese: Kyjev, ul. Almatinská 8.



