Farbařské a tryskací kabiny pro Azovtechgas

Окрасочно-дробеструйный комплекс для Азовтехгаз

Farbařské a tryskací kabiny pro Azovtechgas - Techservis WEKO s.r.o.

Koncem února 2020 jsme obdrželi žádost o komplexní vybavení zahrnující farbařskou a tryskací kabinu pro kovové konstrukce. Výrobní základna objednatele se nachází v Mariupolu v Doněcké oblasti. Díky šťastné náhodě byli naši specialisté nedaleko, ve městě Záporoží, a rychle zareagovali na obdrženou žádost a vyrazili k objednateli na místo.
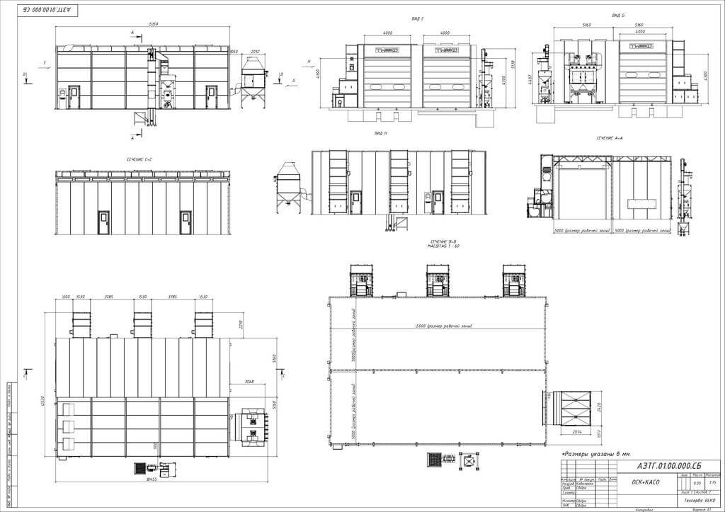
Objednatelem byla společnost s ručením omezeným „Azovtechgas“, která se zabývá dodávkou technických plynů, plynových směsí a svařovacího zařízení a také prováděním stavebních a montážních prací v různých oblastech průmyslové výstavby. Maximální rozměr výrobků, které se budou v kabinách zpracovávat, je 12x3x3m. Tryskací a farbařské kabiny umožní zvýšit kvalitu lakování všech kovových výrobků vyráběných společností.

Lakovací kabina má dva hlavní pracovní režimy – malování a sušení, s teplotními režimy 18-24°C a 20-70°C. Kabina je průchozí, s vnitřními rozměry 15x5x5m a dvěma sadami sekčních vrat s automatickým pohonem na koncových stěnách. Vzduch je ohříván pomocí tří výkonných plynových hořáků, každý o výkonu až 350 kW, a výměníků tepla z nerezové oceli, které byly speciálně navrženy a vyrobeny naší společností pro farbařské kabiny. Osvětlení v kabině zajišťují dva boční a dva stropní řady vysoce účinných čtyřlampových LED svítidel, přičemž úroveň osvětlení uvnitř kabiny není menší než 900 luxů.

Azovtechgas

Hlavní zvláštností této kabiny je její možnost zónového provozu. Tři samostatné termoventilační skříně ve spojení se speciálně vyvinutým automatizačním a kontrolním systémem umožňují zapínat a provozovat každou zónu nezávisle na ostatních. Kabina má tedy tři zóny o rozměrech 5x5x5m, a při lakování menších výrobků mohou operátoři kabiny používat pouze jednu nebo dvě zóny. Systémy automatizace a kontroly v tomto provedení jsou třikrát větší, dražší a složitější než obvykle, ale díky tomu se provozní náklady na elektřinu a zemní plyn výrazně snižují.

Tryskaci kabina má vnitřní rozměry obdobné jako farbařská kabina – 15x5x5m. Kabina má hermetickou komoru, která je vytvořena jako montovaná ocelová konstrukce se sendvičovými panely. Komora je z vnitřní strany pokryta elastickým měkkým materiálem, který chrání ocelové konstrukce kabiny před poškozením odrážejícím se abrazivem. Kabina je osvětlena dvěma řadami stropních čtyřlampových LED svítidel, umístěných pod úhlem 45°, chráněných proti možným mechanickým poškozením odraženým abrazivem. Kabina rychle a efektivně čistí znečištěný vzduch, který vzniká při čištění, pomocí filtrační a ventilační jednotky FVU-30. FVU-30 je jedním z modelů filtračních a ventilačních jednotek vyvinutých naší společností, s kapacitou 30000 m³/h, 30 válcovými prachovými filtry a systémem automatického čištění filtrů.

Tryskací box je vybavena systémy automatického sběru a regenerace abrazivního materiálu, odstraňování prachu a nečistot. V základech kabiny jsou vytvořeny speciální jímky, zakryté ocelovými mřížemi. Do těchto jímek se při čištění sype abrazivo a nečistoty. V průběhu práce jsou automaticky shromažďovány a vedeny do jímky korečkového dopravníku. Korečkový dopravník je poháněn spolehlivými elektromotory, které zajišťují dlouhou a nepřetržitou práci celého systému. Poté se abrazivo dostane do jímky korečkového dopravníku a je vedeno k regeneračnímu zařízení – vibračnímu separátoru. Vibrační separátor automaticky rozděluje materiál na tři části: nečistoty a znečištění se odvádějí do sběrné nádoby, prach se odvádí do filtrační a ventilační jednotky a abrazivo, vhodné pro opětovné použití, se automaticky vrací zpět do tryskacího zařízení. Tím se v tryskací kabině vytváří uzavřený cyklus pohybu abraziva, přičemž sběr a regenerace abraziva se provádí v plně automatickém režimu. Všechny části a uzly tryskací kabiny – FVU, škrabací podlaha, korečkový dopravník, vibrační separátor – jsou vyvinuty naší společností speciálně pro použití v tryskacích kabinách, vyrábějí se na naší výrobní základně v Kyjevě a mají zvýšenou úroveň spolehlivosti a efektivní ochranu proti poškození.

Zajímat vás budou také