Painting booth for auto trawls – TAD Company

pokrasochnaya kamera dlya avtotralov tad tweko 16

Painting and drying chamber for trawls - Techservice WEKO LLC

In 2016, TWEKO designed and installed a custom painting and drying chamber for Trans-Auto-D LLC (TAD) in Khmelnytskyi Oblast. The chamber ensures high-quality painting of automotive lowbed trailers, meeting the requirements for painting large-scale equipment.

Start of Collaboration

TAD Company is a Ukrainian company specializing in the transportation of oversized cargo within Ukraine and internationally, as well as the production of automotive lowbed trailers. The company is based in Volochysk, Khmelnytskyi Oblast. In 2016, it approached TWEKO with the task of modernizing its painting shop to ensure high-quality and efficient painting of lowbed trailers.

Project Implementation

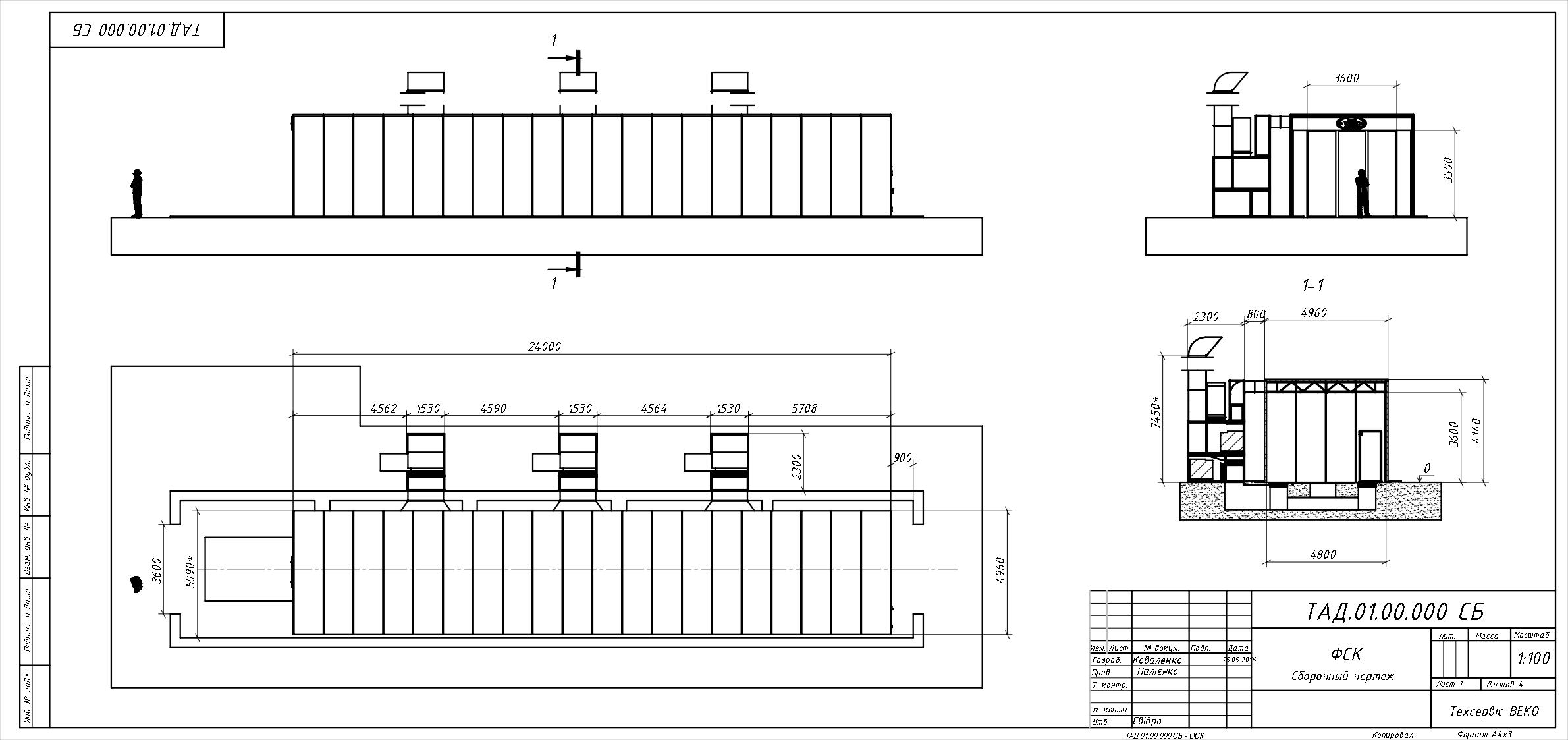
As part of this project, TWEKO manufactured and installed a painting and drying chamber integrated into the customer’s existing facility to maximize space efficiency. Its internal dimensions are 24,000 × 5,000 × 3,500 mm, allowing seamless painting of large-scale lowbed trailers. The installation was completed on schedule. As confirmed by the provided feedback, over three years of operation (2016–2019), no emergency situations were recorded—the chamber operates stably and reliably.

Equipment

The painting and drying chamber is constructed from sandwich panels with 80 mm thick mineral wool insulation, ensuring robust thermal insulation. Key features:

  • Dimensions: Internal measurements of 24,000 × 5,000 × 3,500 mm for processing large-scale lowbed trailers.
  • Thermo-ventilation system: Three supply-exhaust thermo-ventilation cabinets with centrifugal fans, delivering a total capacity of up to 100,000 m³/h.
  • Heating: Electric heat exchangers consume up to 270 kWh during startup, providing a temperature delta of ~35°C at an airflow rate of 100,000 m³/h.
  • Additional components: Dual-row lighting, three-stage air filtration system, three-panel sliding gates, and modern automation and control systems.

Technological Features

The chamber is equipped with a central ventilated pit, enabling operators to paint trailers from floor level without needing to flip or lift them. This significantly reduces time and effort and simplifies the process. Electric heat exchangers ensure stable temperature maintenance, while the three-stage filtration system guarantees high-quality coatings. As noted in the feedback, the chamber fully meets technical requirements, ensuring safe and stable operation.

Advantages

  1. Space optimization due to the 24,000 × 5,000 × 3,500 mm dimensions and integrated design of painting and drying chambers.
  2. Reliability: Three years of continuous operation without incidents, as confirmed by the feedback.
  3. Greater convenience thanks to a ventilated pit, allowing operators to paint from floor level without additional lifting equipment.
  4. High coating quality due to three-stage filtration and powerful ventilation (100,000 m³/h).

TAD Company highly valued its collaboration with TWEKO, emphasizing the chamber’s stable performance and the quality of the results achieved:

Over three years of active operation, we have not recorded any emergency situations with the painting and drying chamber. The chamber operates stably, consistently delivering high-quality vehicle coatings. We can recommend TWEKO as a reliable partner in the field of painting chamber production.
V.P. Melnyk, Director of Trans-Auto-D LLC

Conclusion

The 2016 project for TAD Company confirmed TWEKO’s ability to create efficient equipment for painting lowbed trailers. The chamber, with dimensions of 24,000 × 5,000 × 3,500 mm, a ventilated pit, and a powerful thermo-ventilation system, provided a reliable solution for lowbed trailer production, ensuring high painting quality, operational stability, and process optimization.

You will also be interested in