Painting and Drying Complex for SE Malyshev Plant

Проект окрасочного комплекса

Painting and Drying Complex for SE Malyshev Plant - Techservice WEKO LLC

In 2021, TWEKO completed a project to supply and install a painting and drying complex for the V.O. Malyshev Plant, a leading Ukrainian manufacturer of specialized military equipment. The complex significantly enhanced the efficiency of painting processes and the quality of product finishing.

In September 2020, the V.O. Malyshev Plant announced a tender for the supply of a painting and drying complex as part of the enterprise’s technical re-equipment program. The technical specification, approved by the chief engineer, outlined a full project cycle: design, manufacturing, delivery, installation, and commissioning.

In accordance with Ukrainian legislation, an open tender procedure was conducted. Based on its results, our company, Techservice VEKO and Partner GmbH, was selected as the winner. The client’s decision was based on our proposal’s compliance with all technical requirements and TWEKO’s reputation as a reliable supplier of comprehensive solutions.

Our competitive edge is driven by in-house production, experienced sales, design, and service department specialists, enabling prompt responses to project challenges and the implementation of changes at all stages. A comprehensive approach to design and flexibility in decision-making make TWEKO a trusted partner for technically complex and large-scale projects.

Project

The project for the V.O. Malyshev Plant is one of the most ambitious and technically challenging in our company’s portfolio. It involved not only the supply and installation of technological equipment but also a range of preparatory construction and installation works, laying a rail track, and setting up engineering utilities. A particular challenge was the development and manufacturing of a custom drying chamber capable of drying large and heavy products at temperatures up to 150 °C — the first of its kind implemented by our company.

Works and Equipment

Under the contract terms, TWEKO carried out:
1. Construction Works:

  • Preparation of the floor and ventilation ducts for the painting chamber.
  • Floor setup for the drying chamber.
  • Laying a rail track and installing a traction winch.
  • Manufacturing and installation of air ducts for air supply and exhaust.

2. Equipment Manufacturing and Installation:

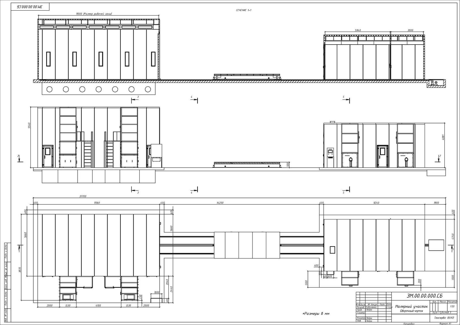
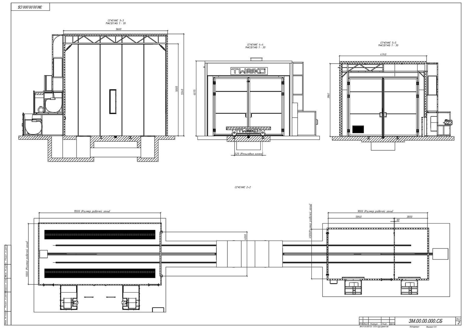
  • Painting and drying chamber with dimensions (L × W × H) — 11160 × 5660 × 5540 mm.
  • Drying chamber with dimensions (L × W × H) — 9240 × 4740 × 4075 mm, drying temperature up to 150 °C, heated by electric heat exchangers.
  • Rail transport cart with dimensions 6000 × 2300 × 1100 mm, load capacity of 15 tons.

The successful implementation of this project marked a significant milestone in TWEKO’s development. It allowed our team to gain invaluable practical experience and expand the company’s technical and production capabilities. Each new project enables us to raise the bar even higher.

Advantages

  1. High-quality paint coating due to state-of-the-art equipment.
  2. Optimized painting processes through a well-designed complex.
  3. Reliability and compliance with stringent military production requirements.
  4. Effective collaboration at all project stages.

TWEKO completed the full scope of work — from equipment manufacturing to installation and commissioning — with high quality and within the stipulated timelines. Specialists from the design and service departments promptly made necessary adjustments to the project in coordination with the client, ensuring compliance with the technical specifications and tender conditions.

TWEKO carried out all works with high quality, and the equipment fully complies with the technical specifications and tender documentation. We are confident that TWEKO is a reliable manufacturer of painting equipment and recommend them as a responsible partner.Oleksandr Shut, Chief Engineer of V.O. Malyshev Plant

Conclusion

This large-scale project is further proof that TWEKO can handle the most complex technical challenges at the highest level. We are ready to support any enterprise striving for technological advancement.

You will also be interested in