Chamber for applying protective coatings for SE “CB” South “

Камера нанесения защитных покрытий

Protective coating chamber for Yuzhnoye SDO - Techservice WEKO LLC

In 2018, representatives of the State Enterprise “Yuzhnoye Design Office named after M.K. Yangel” approached us with a request for a chamber for applying protective coatings to rocket bodies manufactured by the enterprise. Implementing such a project is a significant milestone in our company’s development and a great honor, so we made every effort to win this tender and supply equipment of the highest quality.

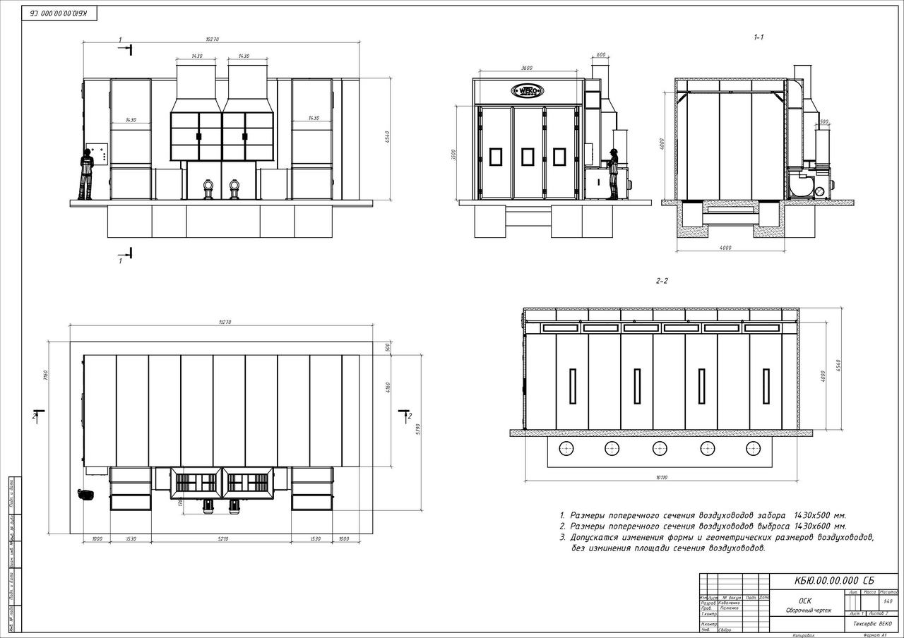
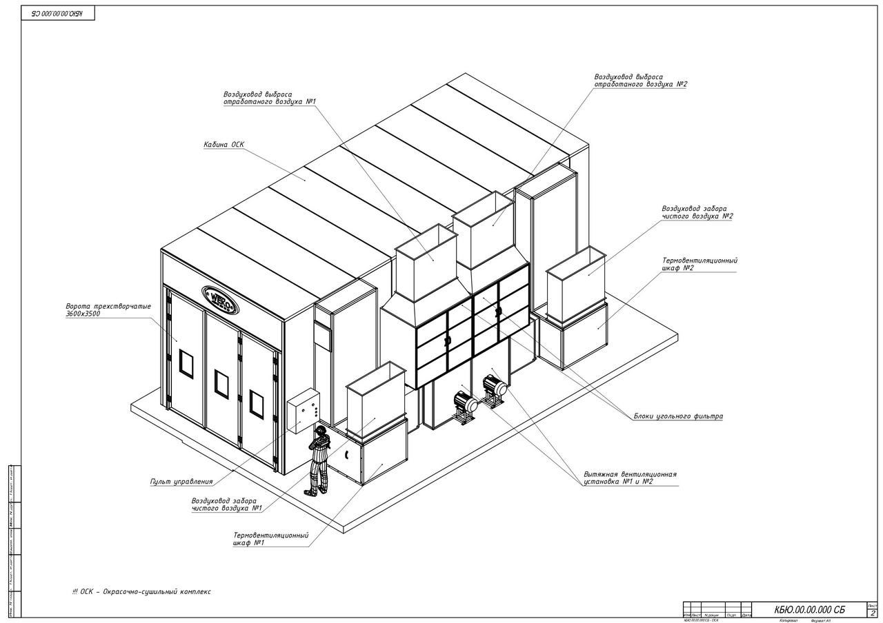
This chamber has internal dimensions of ten meters in length, four meters in width, and four meters in height, installed on a foundation base with underground air exhaust channels. The chamber cabin is a dead-end type, equipped with three-leaf swing gates with an opening of 3.6 x 3.6 meters. The cabin and thermoventilation cabinets are entirely white, as per the customer’s requirements.

The thermoventilation group consists of two supply ventilation cabinets and one dual exhaust cabinet with an activated carbon filter block. The thermoventilation cabinets utilize high-efficiency centrifugal ventilation units manufactured by Nicotra Gebhardt, Italy. Two ventilation units handle air supply, and two handle exhaust, each with a capacity of 25,000 m³/hour, ensuring a constant downward airflow in the chamber at a speed of at least 0.25 m/s.

The air in the chamber is heated using two powerful electric heat exchangers with thick-film metal-ceramic heaters of our own production. The heat exchangers feature a special design developed specifically for use in spray booths, accommodating a large airflow. This allows them to heat a substantial air volume — 25,000 m³/hour — to a delta of 40°C with relatively low energy consumption, ranging from 30 to 90 kW/hour. Additionally, smooth heating power regulation and precise temperature control ensure a minimal temperature variation in the chamber’s operation — ±5°C. Thanks to the powerful heat exchangers, the chamber easily maintains the required operating temperature regimes: coating application at 20°C with a temperature variation of ±4°C, and drying mode at 60°C with a temperature variation of ±5°C.

Exhausted air is purified before release using three types of filters: cardboard, fiberglass, and carbon. This ensures the highest level of purification from both contaminated particles and odors, meeting the strictest European environmental standards for painting facilities. From late 2018 to April 2020, there were no equipment failures, demonstrating its high reliability and receiving positive feedback from the operating staff.

This project is a source of pride for our company. We are honored to be a supplier for the State Enterprise “Yuzhnoye Design Office named after M.K. Yangel” and to contribute to the production of rocket and space technology. Collaboration with such an enterprise has been a significant achievement for us, and the quality of our equipment has been proven through real-world operation.

The spray booth fully performs its functions and has received positive feedback from the operating staff. Therefore, we can confidently characterize Techservice VEKO as a reliable partner and manufacturer of high-quality spray booths that delivers orders on time.O.M. Potapov, Acting Head of the Design and Experimental Production Complex, State Enterprise ‘Yuzhnoye Design Office’

About the State Enterprise “Yuzhnoye Design Office”

The State Enterprise “Yuzhnoye Design Office named after M.K. Yangel” is a leading Ukrainian enterprise located in Dnipro, Ukraine. Founded in 1954, it specializes in the development of rocket and space technology, including launch vehicles, spacecraft, and satellites. The enterprise plays a key role in Ukraine’s space industry and has extensive experience in international cooperation.

You will also be interested in