Ventilation chamber for PJSC “Ukrnafta”

Вентиляционная камера укрнафта

Ventilation chamber for PAT "Ukrnafta" - "TECHSERVIS WEKO"

In 2019, TWEKO completed a project for the supply and installation of two ventilation chambers for PJSC Ukrnafta, Ukraine’s leading oil and gas company. The technological booths ensure safe working conditions during equipment cleaning with solvents, meeting stringent explosion-proof and comfort requirements.

In 2019, Techservice VEKO and Partner GmbH won a tender announced by PJSC Ukrnafta for the supply of two ventilation chambers for cleaning specialized equipment. The order pertained to the company’s division located in Pryluky, Chernihiv Oblast.

The purpose of the procurement was to equip technological booths with effective ventilation for the safe cleaning of stators, ESP shafts, and other equipment using solvents. Our company was selected due to its extensive experience in manufacturing industrial ventilation systems in Kyiv and the high quality of its implemented solutions.

Project Implementation

From March to June 2019, TWEKO manufactured and installed two identical ventilation chambers for PJSC Ukrnafta. The equipment was created in full compliance with the technical specifications, all agreed deadlines were met, and it fully satisfied the enterprise’s needs. The chambers provide uninterrupted ventilation and safety, confirming the reliability of TWEKO’s solutions.

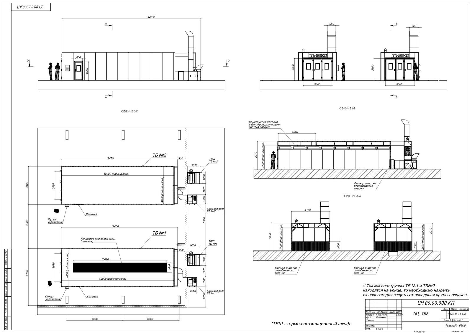
Each ventilation chamber has internal dimensions of 12,000 × 4,000 × 2,800 mm and is designed in an explosion-proof configuration (Category A for explosion and fire hazards, climatic modification UHL 4 per GOST 15150-69). The chambers are intended for the effective removal of solvent vapors, petroleum products, and chemicals during industrial operations.

Key features of the technological booths:

  • Thermo-ventilation cabinets: Provide the supply of clean atmospheric air, its purification, heating, and exhaust of used air from the chamber.
  • Airflow: A constant speed of 0.3 m/s from the front to the rear of the chamber quickly removes vapors, creating safe working conditions.
  • Heating: In cold seasons, air is heated by superheated water circulating in 257 kW water calorifiers, with temperature regulation via a control panel within +18–20°C.
  • Safety: An automatic system for detecting and removing explosive vapor concentrations ensures worker protection.

Technological Features

These technological booths are sealed chambers with enhanced ventilation and air filtration. The ventilation system ensures the rapid removal of solvent vapors, petroleum products, and chemicals during cleaning. Thanks to constant and uniform ventilation, the chambers create safe and comfortable working conditions for personnel, compliant with European occupational safety standards.

Clean and heated atmospheric air is continuously supplied to the ventilation chamber. The air is heated to +20°C using water calorifiers. Air is supplied through ventilation ducts located at the front of the chambers, while exhaust air is extracted through filter cassettes at the rear. This creates a constant longitudinal airflow at 0.3 m/s, ensuring rapid vapor removal and safe working conditions.

The ventilation chambers have internal dimensions of 12,000 × 4,000 × 2,800 mm. The front wall features insulated swing gates with a 3,200 × 2,400 mm opening. Thermo-ventilation cabinets are positioned at the rear of the chambers. The supply ventilation units have a power of 7.5 kW, and the exhaust units have 5.5 kW, guaranteeing efficient air circulation in the technological booths.

All chamber components—including lighting, ventilation units, and electric motors—are designed in an explosion-proof configuration per Category A requirements. The lighting provides uniform illumination of the work area, and the fan motors have appropriate protection classes, ensuring safe operation even in explosive conditions.

Advantages

  1. Explosion-proof design for working with solvents in ventilation chambers.
  2. High ventilation efficiency with an airflow of 0.3 m/s.
  3. Comfortable working conditions due to adjustable temperatures of +18–20°C.
  4. Reliability and compliance with the technical requirements of the oil and gas sector.
TWEKO manufactured and installed two ventilation chambers within the agreed timelines, with no deviations from the technical specifications. The equipment fully met our needs, ensuring safety and comfort. We recommend TWEKO as a reliable ventilation chamber manufacturer!O.V. Prozur, Project Manager at PJSC Ukrnafta

Conclusion

The 2019 project for PJSC Ukrnafta demonstrated TWEKO’s ability to develop and manufacture specialized industrial ventilation equipment, particularly for the oil and gas industry. Over four months, two ventilation chambers were produced and installed, reinforcing our reputation as a reliable partner.

The main challenge of the project was the stringent explosion-proof requirements for all chamber components—Category A, climatic modification UHL 4 per GOST 15150-69. Therefore, all elements, including lighting, ventilation units, and electric motors, were designed to meet the necessary protection standards.

We are proud of our successful collaboration with an industry leader and are ready to implement similar solutions for other industrial enterprises.

You will also be interested in