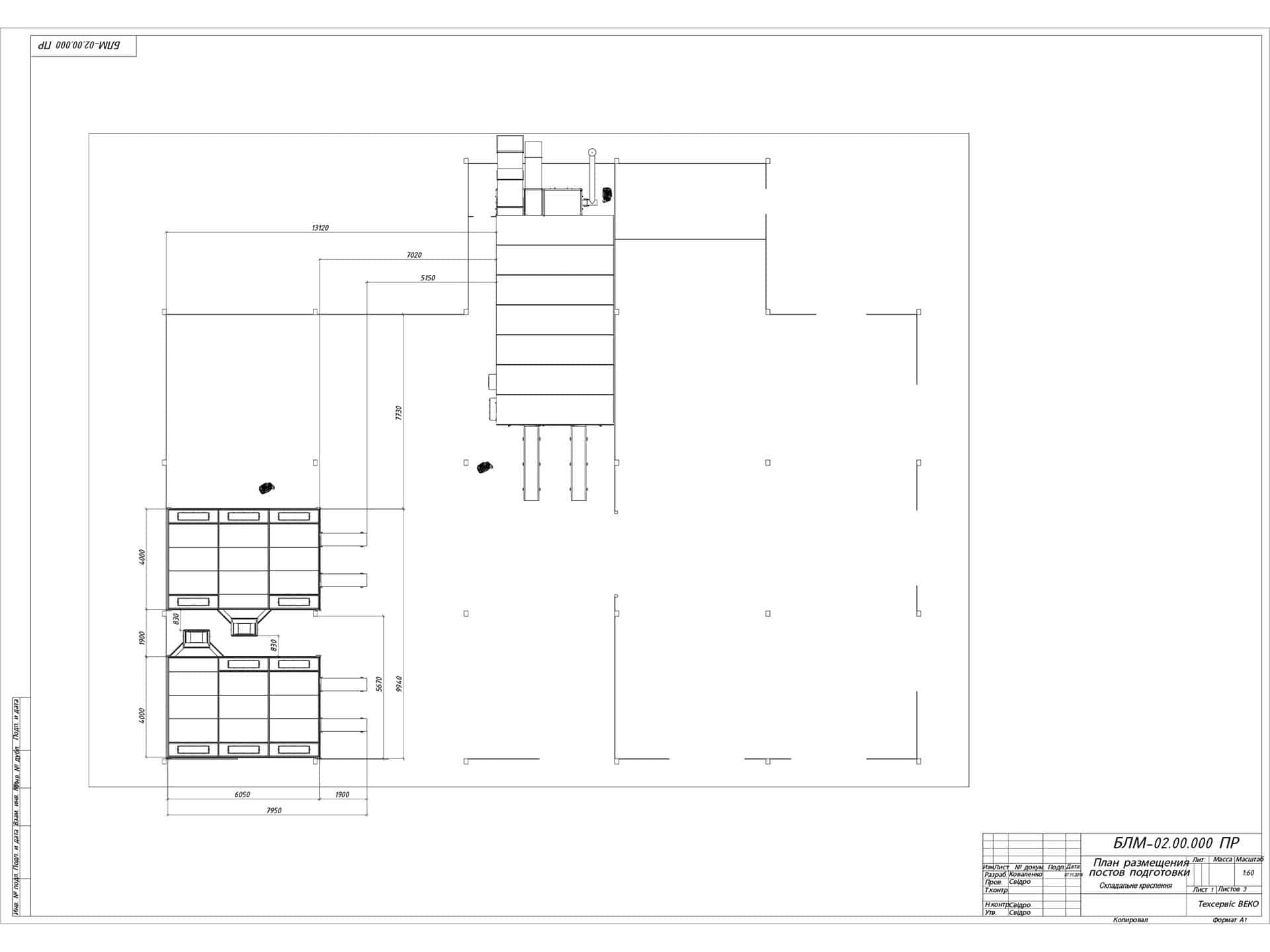
TWEKO implemented a project to equip the body repair department of Bosch Auto Service “VB Avto” (Kosiv, Ivano-Frankivsk region) with a modern car paint booth. The solution includes an AKFS series spray booth and two APP-Standart preparation stations, creating a complete automotive refinishing system for surface preparation, painting, and drying. The equipment is installed on steel platforms with grated flooring, allowing the paint shop to be integrated into the existing service facility without constructing underground ventilation ducts.
About the Client
Bosch Auto Service “VB Avto” is an automotive service center located in Kosiv (Ivano-Frankivsk region, Ukraine) and part of the international Bosch Car Service network. The company has been operating since 2008 and specializes in vehicle diagnostics, maintenance, and repair for various car brands.
As the body repair department expanded, the company decided to establish a modern paint shop equipped with a professional car paint booth capable of ensuring consistent quality for surface preparation, painting, and drying processes.
A key requirement of the project was the integration of the equipment into the existing production facility without extensive construction work.
Project Objectives
The TWEKO engineering team was tasked with designing a compact and efficient automotive paint shop capable of providing a complete vehicle refinishing process.
- organize the technological process for vehicle preparation, painting, and drying;
- enable simultaneous preparation of two vehicles;
- integrate the equipment into the existing building without constructing underground ventilation ducts;
- ensure efficient removal of dust and paint overspray;
- provide safe and comfortable working conditions for personnel;
- optimize vehicle movement between preparation and painting areas.
To achieve these goals, a comprehensive solution based on the AKFS-9 spray booth and two APP-Standart preparation stations was developed.
Solution
TWEKO engineers proposed an integrated automotive painting system consisting of the AKFS-9 spray booth and two APP-Standart preparation stations. This configuration forms a complete car paint booth solution with controlled airflow, lighting, and temperature conditions.
The equipment is installed on steel platform structures approximately 400 mm high with grated flooring. This design enables air extraction through the floor without the need for underground ventilation channels.
A vertical Down Draft airflow is created within the working zone: filtered air enters through ceiling filters, passes through the spray area, and is extracted through the grated floor together with dust and paint overspray.
The two preparation stations allow simultaneous sanding, filling, priming, and polishing of two vehicles before they are transferred to the spray booth for painting.

Key Components of the System
| Component | Description |
|---|---|
| AKFS-9 Spray Booth | Industrial spray booth for applying automotive coatings and drying painted surfaces. Equipped with Down Draft supply and exhaust ventilation, diesel-fired air heating system, LED lighting, and automated control of operating modes. |
| APP-Standart Preparation Stations | Two preparation stations designed for sanding, filling, priming, and polishing operations. The vertical airflow system ensures effective dust removal and a clean working environment. |
| Steel Platforms | Heavy-duty steel platform structures with grated flooring approximately 400 mm high, enabling efficient air extraction through the floor without underground duct construction. |
| Ventilation System | Supply and exhaust ventilation units provide filtered air to the working area and remove paint overspray and sanding dust. |
| Filtration System | Ceiling filter modules of EU5 filtration class supply clean air to the painting area and maintain high air purity during operation. |
| Control Panel | Central control panel with Start/Stop controls, operating status indicators, lighting control, and ventilation/recirculation mode switching. |
| Safety System | The equipment is constructed from non-combustible materials and equipped with fire suppression systems and safety interlocks to prevent emergency situations. |
Technical Specifications
| Parameter | Value |
|---|---|
| General Information | |
| Spray Booth Model | AKFS-9 |
| Preparation Stations | 2 (APP-Standart) |
| Airflow Type | Down Draft |
| Dimensions | |
| Booth Dimensions | 8100 × 4500 × 3500 mm |
| Door Size | 3600 × 3000 mm |
| Platform Height | 400 mm |
| Spray Booth Ventilation | |
| Supply Air Capacity | up to 23,000 m³/h |
| Exhaust Air Capacity | up to 22,000 m³/h |
| Fan Power | 11 kW / 7.5 kW |
| Preparation Area Ventilation | |
| Exhaust Capacity | up to 18,000 m³/h |
| Fan Power | ≈5.5 kW |
| Air Velocity in Working Zone | ≈0.19 m/s |
| Booth Systems | |
| Heating System | Diesel-fired air heater |
| Lighting | LED lighting (ceiling and side) |
Project Implementation
The project was carried out in several stages and included engineering analysis of the facility, development of the paint shop layout, equipment manufacturing, installation, and commissioning. All stages were completed by TWEKO specialists in cooperation with the Bosch Auto Service “VB Avto” team.
At the initial stage, TWEKO specialists analyzed the service center’s production premises and developed a layout solution for the paint shop, taking into account the building dimensions, vehicle movement logistics, and technical requirements for ventilation and air filtration.
Special attention was paid to integrating the equipment into the existing facility without the need for underground ventilation ducts.
- analysis of the service facility dimensions;
- development of the paint shop layout;
- determination of the optimal placement of the spray booth and preparation stations;
- design of the ventilation system using steel platform structures.
Based on the engineering analysis, a solution using steel platforms with grated flooring was proposed, allowing efficient air extraction without complex construction work.
The paint shop equipment was manufactured at TWEKO production facilities in accordance with the approved technical specifications and project documentation.
The delivery package included:
- AKFS-9 spray booth;
- two APP-Standart preparation stations;
- ventilation units and air duct systems;
- air heating system with diesel burner and heat exchanger;
- control panel and automated equipment monitoring system.
The equipment was prepared in stages for transportation and installation at the customer’s site.
After delivery to the site, TWEKO specialists performed installation of the steel platform structures, the AKFS-9 spray booth, and the APP-Standart preparation stations.
The platform design enabled the implementation of an efficient exhaust ventilation system through the grated floor without the need for underground duct construction.
- installation of steel platform structures;
- installation of the spray booth enclosure;
- installation of preparation stations;
- installation of ventilation units and air ducts;
- electrical wiring and connection of control systems.
The equipment layout was designed to ensure convenient vehicle movement within the paint shop. The two preparation stations allow simultaneous preparation of two vehicles.
After installation was completed, TWEKO specialists carried out a full set of commissioning procedures to verify and adjust all systems of the paint shop.
- testing of supply and exhaust ventilation systems;
- balancing airflow within working zones;
- configuration of automation and temperature control systems;
- testing painting and drying operating modes.
After commissioning, the system was put into operation and the service center personnel received training on equipment operation and maintenance.
The paint shop system was commissioned in May 2020.
Operating Principle
Vehicle preparation is carried out at the APP-Standart preparation stations, where the vertical airflow system efficiently removes sanding dust and contaminants from the working zone.
After preparation, the vehicle is moved to the AKFS-9 spray booth. During the painting process, the Down Draft ventilation system ensures a uniform distribution of filtered air and effective removal of paint overspray.
During the drying cycle, the diesel-fired air heater warms the circulating air inside the booth, providing uniform curing of the automotive coating.
Video demonstrating the operation of the paint shop at Bosch Auto Service “VB Avto” (Kosiv), equipped with the AKFS-9 spray booth and APP-Standart preparation stations by TWEKO.
Maintenance and Safety
The filtration elements have a modular design and can be quickly replaced during scheduled maintenance. A pressure monitoring system alerts operators when filters require replacement.
The automated control system monitors temperature, pressure, and operating modes. Safety is ensured by temperature sensors, pressure switches, thermal relays, and automatic circuit breakers.
Results
- Complete body repair cycle within a single paint shop.
- Higher productivity due to simultaneous operation of two preparation stations.
- Consistent coating quality ensured by a controlled airflow environment.
- Reduced construction costs thanks to the steel platform installation system.
- Improved working conditions for painters.
The equipment was manufactured and delivered within the agreed timeframe. Installation and commissioning were completed by the company’s specialists ahead of schedule without compromising quality.
The company’s service team provides comprehensive technical support both during the warranty and post-warranty periods. We recommend TWEKO as a reliable partner you can depend on.
Bosch Auto Service “VB Avto”, Kosiv, 2020Conclusion
The project for Bosch Auto Service “VB Avto” demonstrates TWEKO’s capability to deliver comprehensive engineering solutions for automotive service facilities. The AKFS-9 spray booth combined with APP-Standart preparation stations created an efficient automotive paint shop with reliable performance and high coating quality.


