TWEKO realizovala lakovací stanoviště s odsávacími zónami pro LTL Group (Kyjev, Ukrajina) v únoru 2013. Komplex pro laboratoř přípravy lakovacích materiálů zajistil pohodlné podmínky pro operátory při vytváření výstavních vzorků lakovacích nátěrů.
O klientovi
Společnost LTL Group je přední dovozce vysoce kvalitních lakovacích materiálů se sídlem v Kyjevě. Pro vybavení laboratoře («kuchyně») na přípravu lakovacích nátěrů se podnik obrátil na TWEKO s požadavkem na vytvoření zařízení, které zajistí pohodlné a bezpečné podmínky pro operátory při práci s výstavními vzorky. Zjistěte, jak objednat lakovací vybavení pro vaši laboratoř!
Cíle projektu
Cílem projektu bylo vytvoření podmínek pro práci operátorů v laboratoři přípravy lakovacích materiálů prostřednictvím vybavení lakovacího stanoviště se dvěma pracovními místy a odsávacími zónami. Hlavní požadavky zahrnovaly:
- Vývoj dvou lakovacích stanovišť s suchou filtrací pro nanášení lakovacích nátěrů na vzorky.
- Vytvoření dvou odsávacích zón pro zachycení a čištění par nátěrů.
- Integrace zařízení do jednotného systému s jednou odsávací ventilační jednotkou pro úsporu nákladů.
- Zajištění pohodlí při provozu (snímatelné filtry, otočné stoly) a bezpečnosti.
- Splnění standardů pro práci s lakovacími materiály v laboratorních podmínkách.
Řešení od společnosti TWEKO: lakovací stanoviště s odsávacími zónami
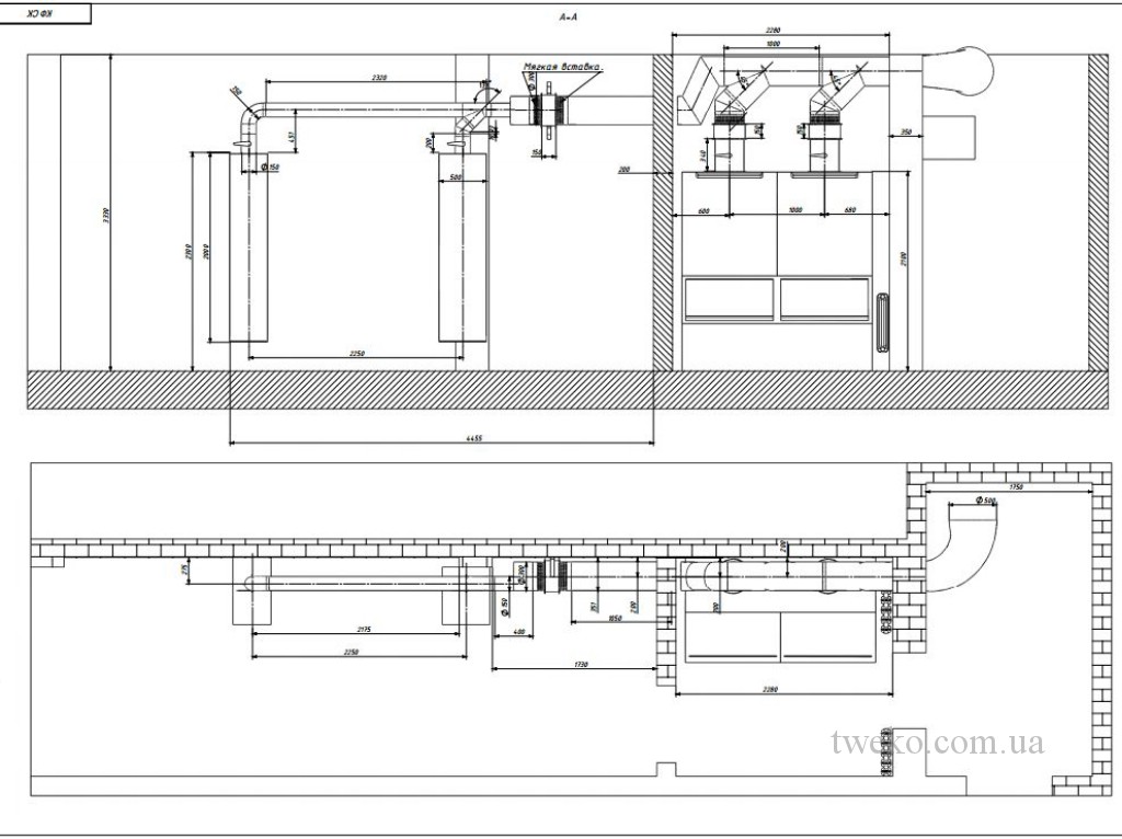
TWEKO, podle smlouvy, navrhla a nainstalovala «na klíč» lakovací stanoviště se suchou filtrací a dvěma odsávacími zónami pro laboratoř LTL Group. Komplex byl přizpůsoben podmínkám prostoru pro přípravu lakovacích materiálů. Klíčové prvky řešení:
- Lakovací stanoviště se suchou filtrací. Dvě pracovní místa ve formě aspiračních skříní vyrobených z kovového rámu (profilové trubky a rohovníky), obložených ocelovým plechem s ochranným nárazuvzdorným lakovacím nátěrem. Každá skříň je vybavena otočným stolem pro pohodlné nanášení nátěrů na výrobky a snímatelnou filtrační kazetou pro rychlou výměnu filtračního materiálu.
- Odsávací zóny. Dva lichoběžníkové boxy z pozinkované oceli pro zachycení, čištění a odvod par nátěrů vznikajících při míchání a promíchávání materiálů. Přední část zón je chráněna kovovou sítí, aby se zabránilo vniknutí velkých předmětů.
- Ventilační systém. Obě lakovací stanoviště a odsávací zóny jsou propojeny výfukovými kanály do jedné linie vybavené šoupátkovými klapkami pro regulaci proudění vzduchu. Odsávací ventilační jednotka s elektromotorem (výkon až 10 000 m³/h) je umístěna mimo prostor, což zajistilo úsporu nákladů díky jednotnému systému odsávání.
- Bezpečnost a pohodlí. Kovová síť na zónách, nárazuvzdorný nátěr skříní a snímatelné filtry zaručují bezpečnou a pohodlnou práci operátorů. Systém splňuje standardy pro laboratoře s lakovacími materiály.
Soubor byl doplněn projektovou dokumentací, přičemž instalace a příprava k uvedení do provozu byly provedeny v souladu s technickým zadáním zákazníka.
Průběh realizace
Požadavek od LTL Group přišel v říjnu 2012. TWEKO provedla analýzu podmínek laboratoře s ohledem na požadavky pro práci s lakovacími materiály.
Návrh zahrnoval vývoj lakovacího stanoviště se dvěma pracovními místy a odsávacími zónami, integrovanými do jednotného ventilačního systému. Výroba komponent (rámů, zón, vzduchovodů) probíhala od listopadu 2012 do ledna 2013.
- Výroba dvou lakovacích stanovišť s otočnými stoly a filtračními kazetami.
- Vytvoření dvou odsávacích zón z pozinkované oceli s kovovou sítí.
- Instalace jednotného ventilačního systému s jednotkou o výkonu 10 000 m³/h a šoupátkovými klapkami.
- Integrace zařízení do prostoru laboratoře s ohledem na omezení.
Instalace a zprovoznění byly dokončeny v únoru 2013. Zařízení bylo uvedeno do provozu po montáži a testování, což zajistilo soulad s podmínkami smlouvy a technickým zadáním.
Výsledky pro zákazníka
- Pohodlné podmínky pro operátory díky efektivnímu zachycení par nátěrů odsávacími zónami.
- Pohodlí při nanášení nátěrů díky otočným stolům a snímatelným filtrům.
- Úspora nákladů díky jednotné odsávací ventilační jednotce s výkonem 10 000 m³/h.
- Bezpečnost práce zajištěna kovovou sítí, nárazuvzdorným nátěrem a souladem se standardy.
- Optimalizace prostoru laboratoře díky kompaktní integraci zařízení.
Zpětná vazba od zákazníka
Vedoucí laboratoře, LTL Group
Závěr
Projekt pro LTL Group, realizovaný v únoru 2013, ukázal odbornost TWEKO při vývoji lakovacích stanovišť a ventilačních systémů pro laboratoře. Komplex se dvěma lakovacími stanovišti a odsávacími zónami zajistil pohodlí, bezpečnost a efektivitu. Technologie projektu odpovídají sériovému vybavení série FPS.
Lakovací stanoviště se suchou filtrací: série FPS
Lakovací stanoviště se suchou filtrací FPS od TWEKO je moderní řešení pro laboratoře a průmyslové objekty, které potřebují kvalitní nanášení lakovacích nátěrů. Systém zahrnuje aspirační skříně s otočnými stoly, snímatelné filtrační kazety a integrovanou ventilaci s odsávacími zónami, které zajišťují čistý mikroklima a bezpečnost. Série FPS je ideální pro autoservisy, laboratoře a výrobní podniky, kde jsou klíčové kompaktnost, energetická účinnost a soulad se standardy. TWEKO přizpůsobuje vybavení individuálním potřebám klientů, zajišťujíc optimální pracovní podmínky.

